Technické výkresy
výkresy a technické riešenia na stiahnutie vo formáte DWG
C - 80
Držáky horního nosiče | náhled
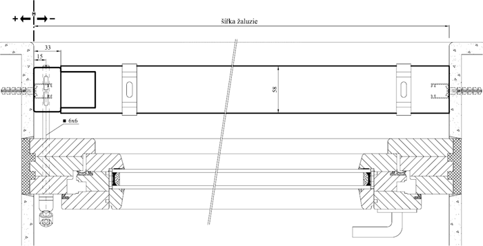
Půdorys horního nosiče - nulová poloha převodovky | náhled
Půdorys posunutí převodovky | náhled
Konzoly vodících lišt | náhled
Z - 90
Držáky horního nosiče | náhled
Půdorys horního nosiče - nulová poloha převodovky | náhled
Půdorys posunutí převodovky | náhled



